PARMA: QUADRILOCALE RISTRUTTURATO COMODO AI SERVIZI

Zarotto, Parma
€ 288.000
Appartamenti
3 Camere
1 Bagni
115 m²

Nel cuore di Parma, a pochi passi dai principali servizi, scuole, parchi e negozi, proponiamo in vendita un appartamento al primo piano di una palazzina dotata di ascensore, completamente ristrutturato e pronto da vivere.

L’immobile offre spazi confortevoli che soddisfano sia chi cerca una casa da abitare sia chi vuole fare un investimento sicuro.

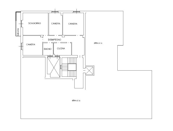
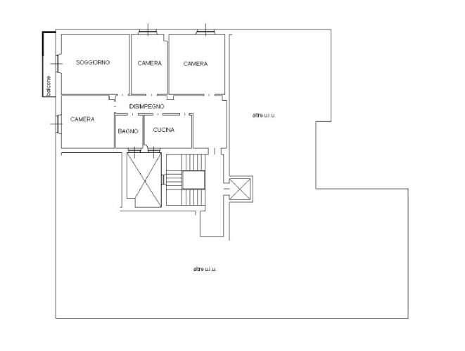
L’appartamento si compone di un ampio soggiorno con balcone, perfetto per momenti di relax e convivialità, una cucina moderna e funzionale, tre camere spaziose e un bagno con doccia.
La disposizione degli ambienti contribuisce a rendere ogni stanza accogliente e versatile, ideale per famiglie o per chi desidera creare uno spazio personalizzato.

Attualmente locato, l’immobile rappresenta un’opportunità immediata di reddito, ma può essere ceduto libero, pronto per essere abitato o personalizzato secondo i propri gusti.
La posizione strategica permette di muoversi agevolmente a piedi o con i mezzi pubblici, grazie alla vicinanza a fermate autobus, supermercati, farmacie e servizi di ogni tipo.
Nelle immediate vicinanze si trovano anche aree verdi e parchi, ideali per passeggiate e attività all’aria aperta, e tutti i principali collegamenti stradali rendono semplice raggiungere il centro città o le zone limitrofe.

Immobili con queste caratteristiche, in una zona così centrale e servita, raramente rimangono sul mercato: la combinazione tra posizione, qualità della ristrutturazione e flessibilità di utilizzo rende questa soluzione unica nel suo genere.
Che si tratti di un investimento a reddito stabile o di una casa pronta da abitare, questo appartamento offre la possibilità di vivere o investire in un contesto sicuro, apprezzato e in forte domanda.
Non lasciarti sfuggire questa opportunità, un immobile così completo e ben posizionato è difficile da trovare.

Per ulteriori informazioni o per fissare una visita, contattaci via whatsapp al 3793025833 con il codice PARMA735.

ID: 4565160

Provincia: Parma

Comune: Parma

Zona: Zarotto

Dettagli della proprietà

ID della proprietà: HI-4565160
Tipo di proprietà: Appartamenti
Stato della proprietà: Vendita
Camere da letto: 3
Bagni: 1
Dimensione dell'area: 115 m²
Anno costruito: 1967

Recensione per PARMA: QUADRILOCALE RISTRUTTURATO COMODO AI SERVIZI

Avatar
Valutazione complessiva:
Quality of Property
Location of Property
Neighborhood
Features
Floor Plans
Contenuto recensione:
Accedi per lasciare una recensione
× Come possiamo aiutarti?